Creative Crossroad

The proposal for the state to partially cover the pension for independent cultural workers
was rejected, leaving them responsible for their own retirement. In response to this
decision, the idea emerged to repurpose the vacant Strassenverkehrsamt building in Zurich
for artists. Originally strategically located near a highway exit, the once practical site has now
become congested due to urban sprawl, finding itself almost at the city center. The changing
landscape of transportation in Zurich, with fewer people owning cars and a decrease in city
vehicles, has rendered the Strassenverkehrsamt obsolete. This project aims to breathe new
life into this historical building, transforming it into a dynamic space that aligns with the
evolving needs of the city and its inhabitants. Read more


Embracing the need for change and the evolving urban landscape, the Strassenverkehrsamt
transforms into a haven for unconventional thinkers and doers—artists. This shift addresses
the challenges faced by our local art scene due to the rejection of pension support. The
connection between the building's history of road infrastructure, and the artists'
commitment for sustainability, biodiversity, and a pollution-free environment becomes
evident. The canton's approval provides refuge to artists, preventing them from moving to
another city.

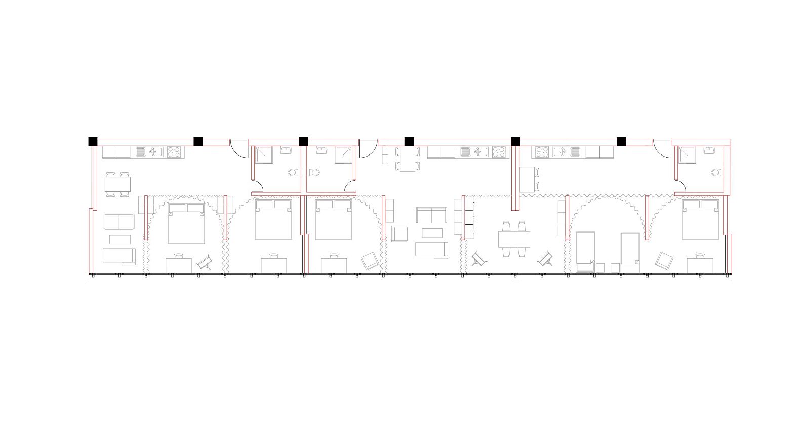
Within the robust structure of the Strassenverkehrsamt lies potential for transformation.
The inner column grid offers flexibility for apartment layouts. The 30 living units inside
showcase adaptability through adjustable layouts using dynamic curtains. The incorporation
of dual layers of curtains enhances both visual separation and acoustic/thermal
functionality. The linear curtains serve as a visual demarcation between rooms, providing a
dynamic and adaptable way to define spaces. On the other hand, the circular curtains,
crafted from felted wool, serve dual purposes—acoustic and thermal excellence. Felted
wool, an easily accessible and cost-effective material requiring only wool, soap, and water
for its creation, embodies both affordability and sustainability. The circular design of the
acoustic curtains is intentional. This rounded form is optimal for the absorption of sound
waves, making it an ideal choice for enhancing acoustics within the space. The felting
process not only renders the curtains cost-efficient but also introduces a self-made element.

Each living unit boasts 65m². Through the seamless integration of sliding walls, two units can
effortlessly merge, creating expansive flats of 130m². This flexibility extends to the interiors,
allowing residents to customize living spaces and bedrooms as they want, thanks to the
dynamic interplay of apartments and curtains. The thoughtful excavation not only welcomes
natural light into the heart of the building but also facilitates cross ventilation for each
apartment. A striking passerelle, supported by existing columns, introduces a new
dimension. Accessible through a strategically added door to the staircase core, it provides
residents with a unique entry point to their homes. All the interior dry walls were removed,
leaving only the essential column grid intact. The elevated basement serves as a rooftop
platform adorned with wild plants. This not only promotes biodiversity but also provides
residents with a shared private outdoor garden retreat. In the underground floors, a
versatile mix of flats, ateliers, exhibition rooms, and creative classes harmoniously coexist.
These spaces can seamlessly transition into everyday facilities if the situation changes and
the need arises. An additional entrance on the left side ensures convenience, allowing for
substantial deliveries when required. Fundamentally, the design harmonizes innovation with
functionality, offering residents a transformative living experience within a dynamic and
sustainable architectural framework.

In its transformation, the Strassenverkehrsamt stands as a symbol of adaptability. The
flexible living spaces not only provide refuge for artists but also open the doors for the
future. Recognizing that the decision regarding pension support could change, another
community facing challenges is invited to move in and shape their apartments according to
their preferences, allowing for a truly personalized living experience. The goal is to create a
society that simultaneously considers social, ecological, and economic concerns—a
harmonious blend of past and future. Read less

Place
Zürich
Year
2023
Author(s)
Laura Balanzategui
Team
Arno Brandlhuber, Bing Liu, Giacomo Ardesio, Jolene Lee, Meghan Rolvien, Severin Bärenbold, Olaf Grawert, Pan Hu
Contributor(s)
Cornelia Kästli